Mehr anzeigen zum Thema Ausstattung
Ausstattung
Ausstattung:
Die Grundstücksfläche beträgt ca. 346 m².
Die Wohnfläche hat eine Größe von ca. 75 m².
Im Erdgeschoss befinden sich:
eine Wohnzimmer mit Essecke
eine Küche (gute Ausstattung)
eine Windfang/Flur
ein Gäste-WC
eine Garderobe
einen Abstellraum
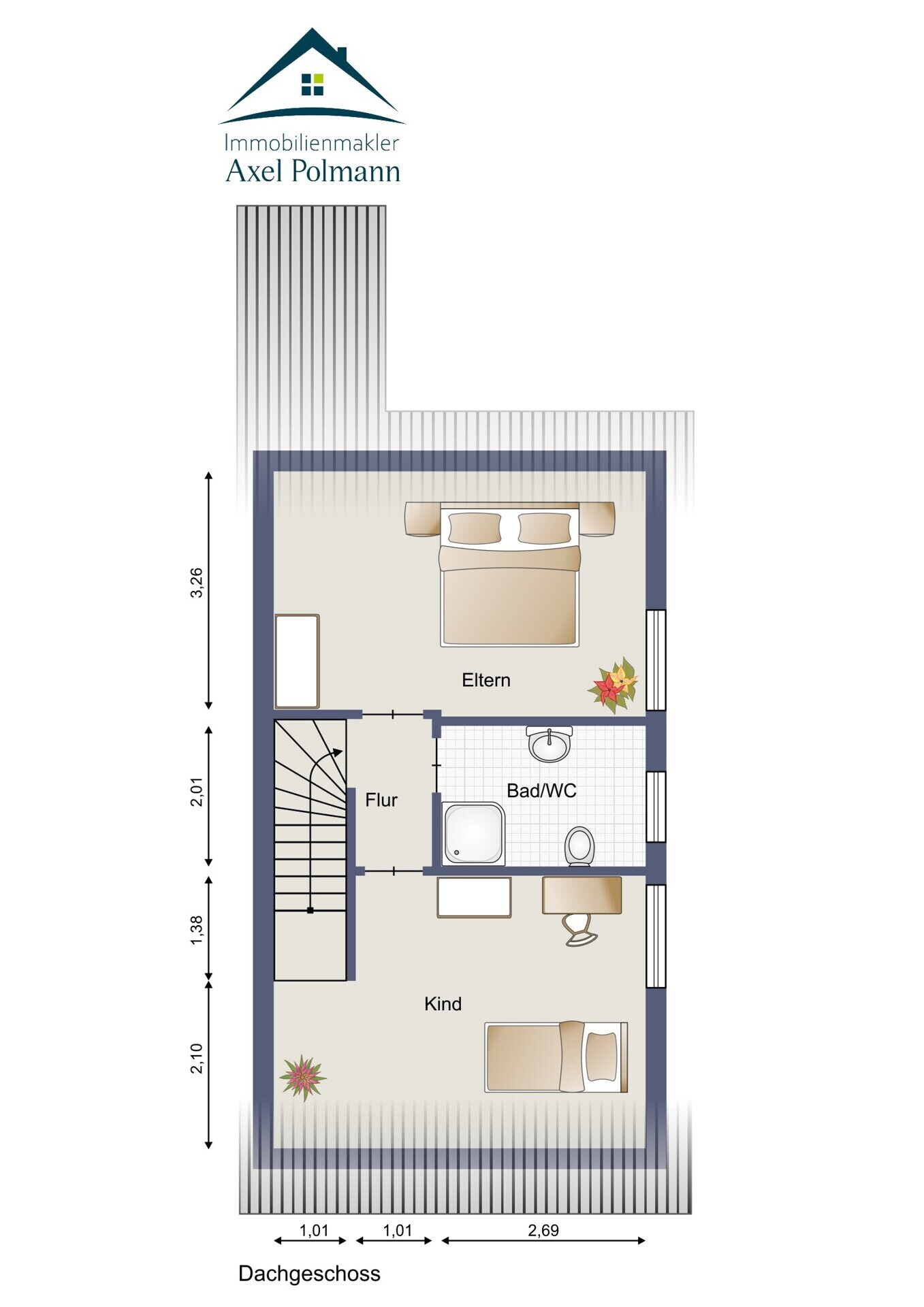
Im Obergeschoss befinden sich:
ein Elternschlafzimmer
ein Kinderzimmer
ein Duschbad
Im Dachgeschoss befindet sich :
ein weiterer Raum welcher über eine feste Holztreppe gut erreichbar ist.
So gut wie alle Fenster verfügen über Jalousien
Ein Glasfaseranschluss ist vorhanden - Homeoffice.
Die Terrasse ist überdacht und mit einem Windschutz und einer Markise versehen.
Hier befindet sich auch der Abstellraum, dieser wurde umfunktioniert und dient jetzt als Hauswirtschaftsraum.
Im schön angelegten Garten steht noch ein Gartenhäuschen, welcher immer als "Teehaus" genutzt wurde.
Die Rasenfläche wird von einem Rasenroboter bearbeitet und kurz gehalten.
Des weiteren befindet sich noch eine Autogarage auf dem Grundstück, diese beinhaltet eine Werkecke und ein elektrisches Sektionaltor.
Alles in allem, eine ehrliche gute Doppelhaushälfte mit Wohlfühlcharakter.
Zögern Sie nicht, diese beeindruckende Doppelhaushälfte nach Vereinbarung zu Ihrem neuen Zuhause zu machen. Eine seltene Gelegenheit von besonderem Wert, die Sie sich nicht entgehen lassen sollten!
Selbstverständlich können wir jederzeit einen Termin für eine Besichtigung vereinbaren.
Ihr Ansprechpartner:
Herr Axel Polmann
Immobilienmakler (IHK)
Braamweg Süd 15
26409 Wittmund
Mobil: 0151 6722 9446
E-Mail: info@immobilienmakler-axel-polmann.de
Web: www.immobilienmakler-axel-polmann.de
Die Grundstücksfläche beträgt ca. 346 m².
Die Wohnfläche hat eine Größe von ca. 75 m².
Im Erdgeschoss befinden sich:
eine Wohnzimmer mit Essecke
eine Küche (gute Ausstattung)
eine Windfang/Flur
ein Gäste-WC
eine Garderobe
einen Abstellraum
Im Obergeschoss befinden sich:
ein Elternschlafzimmer
ein Kinderzimmer
ein Duschbad
Im Dachgeschoss befindet sich :
ein weiterer Raum welcher über eine feste Holztreppe gut erreichbar ist.
So gut wie alle Fenster verfügen über Jalousien
Ein Glasfaseranschluss ist vorhanden - Homeoffice.
Die Terrasse ist überdacht und mit einem Windschutz und einer Markise versehen.
Hier befindet sich auch der Abstellraum, dieser wurde umfunktioniert und dient jetzt als Hauswirtschaftsraum.
Im schön angelegten Garten steht noch ein Gartenhäuschen, welcher immer als "Teehaus" genutzt wurde.
Die Rasenfläche wird von einem Rasenroboter bearbeitet und kurz gehalten.
Des weiteren befindet sich noch eine Autogarage auf dem Grundstück, diese beinhaltet eine Werkecke und ein elektrisches Sektionaltor.
Alles in allem, eine ehrliche gute Doppelhaushälfte mit Wohlfühlcharakter.
Zögern Sie nicht, diese beeindruckende Doppelhaushälfte nach Vereinbarung zu Ihrem neuen Zuhause zu machen. Eine seltene Gelegenheit von besonderem Wert, die Sie sich nicht entgehen lassen sollten!
Selbstverständlich können wir jederzeit einen Termin für eine Besichtigung vereinbaren.
Ihr Ansprechpartner:
Herr Axel Polmann
Immobilienmakler (IHK)
Braamweg Süd 15
26409 Wittmund
Mobil: 0151 6722 9446
E-Mail: info@immobilienmakler-axel-polmann.de
Web: www.immobilienmakler-axel-polmann.de
Mehr anzeigen zum Thema Beschreibung
Beschreibung
Zum Kauf steht eine gepflegte Doppelhaushälfte aus dem Baujahr 1998, die sich im idyllischen Ortsteil Altfunnixsiel der Stadt Wittmund befindet.
Diese charmante Immobilie bietet Ihnen auf einer Grundstücksfläche von ca. 346 m² eine Wohnfläche von etwa 75 m² und überzeugt durch ihre funktionale Raumaufteilung und zahlreichen Annehmlichkeiten.
Im Erdgeschoss erwartet Sie ein helles Wohnzimmer, das nahtlos in eine gemütliche Essecke und eine gut ausgestattete Küche übergeht. Zusätzlich befinden sich hier ein praktischer Abstellraum, ein Windfang mit Garderobe sowie ein Gäste-WC.
Im Obergeschoss befinden sich zwei Schlafzimmer und ein schönes Duschbad. Ein Highlight ist der gut zugängliche Dachboden, der dank Dämmung und Heizungsanschluss als zusätzlicher Raum vielfältig nutzbar ist.
Die überdachte Terrasse mit Windschutz lädt zum Entspannen ein und wird durch eine Sonnenmarkise ergänzt. Der angrenzende Abstellraum dient als Hauswirtschaftsraum mit Platz für Waschmaschine und Trockner. Der wunderschön angelegte Garten verzaubert durch seine Pflegeleichtigkeit und wird von einem Rasenroboter (Robby) in Schuss gehalten. Eine gepflegte Gartenhütte (Teehütte) sowie eine geräumige Garage mit Werkstattecke und Sektionaltor runden das Angebot ab.
Die Ausstattung der Immobilie umfasst eine Gasbrennwerttherme aus 2006 und einen Glasfaseranschluss, der ein komfortables Homeoffice ermöglicht. Diese Doppelhaushälfte ist ein wahres kleines Paradies und bietet Ihnen sofortige Bezugsfreiheit, nur einen Katzensprung von der ostfriesischen Nordseeküste entfernt. Lassen Sie sich von diesem einzigartigen Wohngefühl begeistern!
Zögern Sie nicht und vereinbaren Sie einen Besichtigungstermin, um Ihr neues Zuhause selbst zu erleben.
Ihr Ansprechpartner:
Herr Axel Polmann
Immobilienmakler (IHK)
Braamweg Süd 15
26409 Wittmund
Mobil: 0151 6722 9446
E-Mail: info@immobilienmakler-axel-polmann.de
Web: www.immobilienmakler-axel-polmann.de
Diese charmante Immobilie bietet Ihnen auf einer Grundstücksfläche von ca. 346 m² eine Wohnfläche von etwa 75 m² und überzeugt durch ihre funktionale Raumaufteilung und zahlreichen Annehmlichkeiten.
Im Erdgeschoss erwartet Sie ein helles Wohnzimmer, das nahtlos in eine gemütliche Essecke und eine gut ausgestattete Küche übergeht. Zusätzlich befinden sich hier ein praktischer Abstellraum, ein Windfang mit Garderobe sowie ein Gäste-WC.
Im Obergeschoss befinden sich zwei Schlafzimmer und ein schönes Duschbad. Ein Highlight ist der gut zugängliche Dachboden, der dank Dämmung und Heizungsanschluss als zusätzlicher Raum vielfältig nutzbar ist.
Die überdachte Terrasse mit Windschutz lädt zum Entspannen ein und wird durch eine Sonnenmarkise ergänzt. Der angrenzende Abstellraum dient als Hauswirtschaftsraum mit Platz für Waschmaschine und Trockner. Der wunderschön angelegte Garten verzaubert durch seine Pflegeleichtigkeit und wird von einem Rasenroboter (Robby) in Schuss gehalten. Eine gepflegte Gartenhütte (Teehütte) sowie eine geräumige Garage mit Werkstattecke und Sektionaltor runden das Angebot ab.
Die Ausstattung der Immobilie umfasst eine Gasbrennwerttherme aus 2006 und einen Glasfaseranschluss, der ein komfortables Homeoffice ermöglicht. Diese Doppelhaushälfte ist ein wahres kleines Paradies und bietet Ihnen sofortige Bezugsfreiheit, nur einen Katzensprung von der ostfriesischen Nordseeküste entfernt. Lassen Sie sich von diesem einzigartigen Wohngefühl begeistern!
Zögern Sie nicht und vereinbaren Sie einen Besichtigungstermin, um Ihr neues Zuhause selbst zu erleben.
Ihr Ansprechpartner:
Herr Axel Polmann
Immobilienmakler (IHK)
Braamweg Süd 15
26409 Wittmund
Mobil: 0151 6722 9446
E-Mail: info@immobilienmakler-axel-polmann.de
Web: www.immobilienmakler-axel-polmann.de
Mehr anzeigen zum Thema Lage
Lage
Altfunnixsiel- die Perle kurz vor der Nordsee!!
Nur wenige Kilometer von der Nordseeküste entfernt, abseits vom Trubel der Küstenbadeorte, zwischen
der Kreisstadt Wittmund und dem Nordseebad Carolinensiel, befinden sich der idyllische Ort Altfunnixsiel.
Für Familien und Naturliebhaber ist dieser Ort, umgeben von saftigen grünen Weiden und Windmühlen,
verbunden durch gut ausgebaute Fahrradwege und dem Fluss ”Harle”, der geeignete Platz, um sich von
Stress und Hektik zu erholen.
ALTFUNNIXSIEL- ist eine kleine Oase für Angler, Wassersportler, Fahrradfahrer, Wanderfreunde und
Naturliebhaber.
Altfunnixsiel wurde ca. 1599 angelegt.
Die Harle war für Altfunnixsiel von jeher immer bedeutend.
Bis in die 80er Jahre des 18. Jahrhunderts bestand reger Schiffsverkehr zwischen Wittmund und Carolinensiel.
Waren und Personen wurden mit Fährbooten befördert.
Altfunnixsiel war für ca. 30 Jahre ein bedeutender Sielort mit ziemlichem Hafenumschlag bis er durch das neue Funnixer Siel (Neufunnixsiel) ersetzt wurde.
Heute lebt der Ort von seinen Gästen, seinem regen Vereinsleben und dem Wassersport.
Zahlreiche Freizeitaktivitäten von A wie Angeln bis Z wie Zelten und unzählige nahe und weitere Ausflugsmöglichkeiten, ob mit Auto, Fahrrad, Kanu oder zu Fuß, können Sie von den Funnixer Sielen aus unternehmen.
Lassen Sie sich diese besondere Immobilie nicht entgehen!!
Selbstverständlich können wir jederzeit einen Termin für eine Besichtigung vereinbaren.
Ihr Ansprechpartner:
Herr Axel Polmann
Immobilienmakler (IHK)
Braamweg Süd 15
26409 Wittmund
Mobil: 0151 6722 9446
E-Mail: info@immobilienmakler-axel-polmann.de
Web: www.immobilienmakler-axel-polmann.de
Nur wenige Kilometer von der Nordseeküste entfernt, abseits vom Trubel der Küstenbadeorte, zwischen
der Kreisstadt Wittmund und dem Nordseebad Carolinensiel, befinden sich der idyllische Ort Altfunnixsiel.
Für Familien und Naturliebhaber ist dieser Ort, umgeben von saftigen grünen Weiden und Windmühlen,
verbunden durch gut ausgebaute Fahrradwege und dem Fluss ”Harle”, der geeignete Platz, um sich von
Stress und Hektik zu erholen.
ALTFUNNIXSIEL- ist eine kleine Oase für Angler, Wassersportler, Fahrradfahrer, Wanderfreunde und
Naturliebhaber.
Altfunnixsiel wurde ca. 1599 angelegt.
Die Harle war für Altfunnixsiel von jeher immer bedeutend.
Bis in die 80er Jahre des 18. Jahrhunderts bestand reger Schiffsverkehr zwischen Wittmund und Carolinensiel.
Waren und Personen wurden mit Fährbooten befördert.
Altfunnixsiel war für ca. 30 Jahre ein bedeutender Sielort mit ziemlichem Hafenumschlag bis er durch das neue Funnixer Siel (Neufunnixsiel) ersetzt wurde.
Heute lebt der Ort von seinen Gästen, seinem regen Vereinsleben und dem Wassersport.
Zahlreiche Freizeitaktivitäten von A wie Angeln bis Z wie Zelten und unzählige nahe und weitere Ausflugsmöglichkeiten, ob mit Auto, Fahrrad, Kanu oder zu Fuß, können Sie von den Funnixer Sielen aus unternehmen.
Lassen Sie sich diese besondere Immobilie nicht entgehen!!
Selbstverständlich können wir jederzeit einen Termin für eine Besichtigung vereinbaren.
Ihr Ansprechpartner:
Herr Axel Polmann
Immobilienmakler (IHK)
Braamweg Süd 15
26409 Wittmund
Mobil: 0151 6722 9446
E-Mail: info@immobilienmakler-axel-polmann.de
Web: www.immobilienmakler-axel-polmann.de
Mehr anzeigen zum Thema Sonstige Angaben
Sonstige Angaben
Energieausweis:
Ausweisart: Energieverbrauchsausweis
Energieträger: Gas-Brennwerttherme
Effizienzklasse: D
Energiebedarf: 117,90 kWh (m²a)
Mein Angebot erfolgt freibleibend und unverbindlich.
Alle Angaben sind ohne Gewähr und basieren ausschließlich auf Informationen, die mir von meinem Auftraggeber zur Verfügung gestellt wurden.
Ich übernehme keine Gewähr für die Vollständigkeit, Richtigkeit und Aktualität dieser Angaben.
Weiterhin übernehme ich keine Gewähr für die baurechtliche Zulässigkeit, genehmigte Nutzung, künftige Nutzbarkeit oder die Verwendungszwecke der Käufer.
Ich empfehle sich vor Kauf bei der zuständigen Gemeinde/Landkreis über die gewünschte Nutzung zu informieren.
GELDWÄSCHE: Als Immobilienmaklerunternehmen ist der Immobilienmakler Axel Polmann nach § 2 Abs. 1 Nr. 14 und § 11 Abs. 1, 2 Geldwäschegesetz (GwG) dazu verpflichtet, bei der Begründung einer Geschäftsbeziehung die Identität des Vertragspartners festzustellen und zu überprüfen, bzw. sobald ein ernsthaftes Interesse an der Durchführung des Immobilienkaufvertrages besteht. Hierzu ist es erforderlich, dass wir nach § 11 Abs. 4 GwG die relevanten Daten Ihres Personalausweises festhalten (wenn Sie als natürliche Person handeln) – beispielsweise mittels einer Kopie. Bei einer juristischen Person benötigen wir eine Kopie des Handelsregisterauszugs, aus welchem der wirtschaftlich Berechtigte hervorgeht. Das Geldwäschegesetz sieht vor, dass der Makler die Kopien bzw. Unterlagen fünf Jahre aufbewahren muss. Als unser Vertragspartner haben Sie auch eine Mitwirkungspflicht nach § 11 Abs. 6 GwG.
Mit dem Zustandekommen eines notariellen Vertragsabschlusses habe ich vom Käufer eine Provision in Höhe von 3,57 % auf den Gesamtkaufpreis inklusive der zur Zeit gesetzlichen Mehrwertsteuer verdient, fällig mit Beurkundung des notariellen Kaufvertrages. Ebenso habe ich als Immobilienmakler einen provisionspflichtigen Maklervertrag mit dem Verkäufer in gleicher Höhe abgeschlossen.
Mündliche Zusagen oder Nebenabreden bedürfen in jedem Fall der Schriftform.
Im Übrigen gelten meine allgemeinen Geschäftsbedingungen.
Irrtum und Zwischenverkauf vorbehalten.
Ihr Ansprechpartner:
Immobilienmakler Axel Polmann
z Hd. Herrn Axel Polmann
Braamweg Süd 15
26409 Wittmund
info@immobilienmakler-axel-polmann.de
Ausweisart: Energieverbrauchsausweis
Energieträger: Gas-Brennwerttherme
Effizienzklasse: D
Energiebedarf: 117,90 kWh (m²a)
Mein Angebot erfolgt freibleibend und unverbindlich.
Alle Angaben sind ohne Gewähr und basieren ausschließlich auf Informationen, die mir von meinem Auftraggeber zur Verfügung gestellt wurden.
Ich übernehme keine Gewähr für die Vollständigkeit, Richtigkeit und Aktualität dieser Angaben.
Weiterhin übernehme ich keine Gewähr für die baurechtliche Zulässigkeit, genehmigte Nutzung, künftige Nutzbarkeit oder die Verwendungszwecke der Käufer.
Ich empfehle sich vor Kauf bei der zuständigen Gemeinde/Landkreis über die gewünschte Nutzung zu informieren.
GELDWÄSCHE: Als Immobilienmaklerunternehmen ist der Immobilienmakler Axel Polmann nach § 2 Abs. 1 Nr. 14 und § 11 Abs. 1, 2 Geldwäschegesetz (GwG) dazu verpflichtet, bei der Begründung einer Geschäftsbeziehung die Identität des Vertragspartners festzustellen und zu überprüfen, bzw. sobald ein ernsthaftes Interesse an der Durchführung des Immobilienkaufvertrages besteht. Hierzu ist es erforderlich, dass wir nach § 11 Abs. 4 GwG die relevanten Daten Ihres Personalausweises festhalten (wenn Sie als natürliche Person handeln) – beispielsweise mittels einer Kopie. Bei einer juristischen Person benötigen wir eine Kopie des Handelsregisterauszugs, aus welchem der wirtschaftlich Berechtigte hervorgeht. Das Geldwäschegesetz sieht vor, dass der Makler die Kopien bzw. Unterlagen fünf Jahre aufbewahren muss. Als unser Vertragspartner haben Sie auch eine Mitwirkungspflicht nach § 11 Abs. 6 GwG.
Mit dem Zustandekommen eines notariellen Vertragsabschlusses habe ich vom Käufer eine Provision in Höhe von 3,57 % auf den Gesamtkaufpreis inklusive der zur Zeit gesetzlichen Mehrwertsteuer verdient, fällig mit Beurkundung des notariellen Kaufvertrages. Ebenso habe ich als Immobilienmakler einen provisionspflichtigen Maklervertrag mit dem Verkäufer in gleicher Höhe abgeschlossen.
Mündliche Zusagen oder Nebenabreden bedürfen in jedem Fall der Schriftform.
Im Übrigen gelten meine allgemeinen Geschäftsbedingungen.
Irrtum und Zwischenverkauf vorbehalten.
Ihr Ansprechpartner:
Immobilienmakler Axel Polmann
z Hd. Herrn Axel Polmann
Braamweg Süd 15
26409 Wittmund
info@immobilienmakler-axel-polmann.de
Mehr anzeigen zum Thema Sonstige Angaben
Energieausweis
A+
< 30
A
30 - 50
B
50 - 75
C
75 - 100
D
100 - 130
E
130 - 160
F
160 - 200
G
200 - 250
H
> 250
- Nutzungsart
- Wohnen
- Baujahr lt. Energieausweis
- 1998
- Endenergieverbrauch
- 117,9 kWh/(m²a)
- Energieausweis
- Verbrauchsausweis
- Energieausweis gültig bis
- 18.12.2034
- Energieeffizienzklasse
- D
- wesentlicher Energieträger
- Gas